






Opening Ceremony
Time: 09:00-10:10, May 6
Venue: 2F, Multifunctional Hall, Fuzhou Strait International Conference & Exhibition Center
Number of Attendees: 1,500
Moderator: a top leader of Fujian Provincial People’s Government
09:00-09:20 Keynote speech by a government leader
09:20-09:30 Speech by a top official of the CPC Fujian Provincial Committee
09:30-09:40 Speech by a top official of the Cyberspace Administration of China
09:40-09:50 Speech by a leading official of the National Development and Reform Commission
09:50-10:00 Speech by a leading official of the Ministry of Industry and Information Technology
Main Forum
Time: 10:20-12:00, May 6
Venue: 2F, Multifunctional Hall, Fuzhou Strait International Conference & Exhibition Center
Moderator: The Head of the Organizer
Agenda:
10:20-10:35 Speech by a leader
10:35-10:45 Speech by a renowned Chinese academician
10:45-11:05 Speech by a representative from state-owned enterprises
11:05-11:25 Speech by a representative from the private sector
11:25-11:35 Speech by a corporate representative from Fujian Province
11:35-11:45 Speech by a top leader of the CPC Fuzhou Municipal Committee
11:45-12:00 The Digital China Development Report (2018) to be released by an official of the Cyberspace Administration of China
E-government Sub-forum
Theme:
E-government in the New Era: Openness, Services and Innovation
Hosted by:
Cyberspace Administration of China
Organized by:
E-government Office of General Office of the State Council
E-government Research Center of the Chinese Academy of Governance
Fuzhou Municipal People’s Government
Supported by:
National Archives Administration of China
Taiji Computer Corporation Limited
Venue:
Room 109, Fuzhou Strait International Conference & Exhibition Center
Time:
14:00-17:00, May 6
Agenda:
Keynote speech, roundtable dialogue, etc.
Digital Ecology Sub-forum
Theme:
Big Data in the Transformation of Ecological Management and Pollution Prevention
Hosted by:
Ministry of Ecology and Environment
Fujian Provincial People’s Government
Organized by:
Information Center of the Ministry of Ecology and Environment
Fujian Provincial Department of Ecology and Environment
Fuzhou Municipal People’s Government
Venue:
2F, Convention Hall, Fuzhou Strait International Conference & Exhibition Center
Time:
15:00-17:00, May 6
Agenda:
Speech by officials, keynote speech, presentations, achievements report, etc.
Big Data Sub-forum
Theme:
Data-driven Integration and Innovation
Hosted by:
Ministry of Industry and Information Technology
Organized by:
Digital China Industrial Development Association
China Academy of Information and Communications Technology Communications Administration of Fujian Province
Fuzhou Municipal People’s Government
Venue:
Room 104, Fuzhou Strait International Conference & Exhibition Center
Time:
14:35-17:55, May 6
Agenda:
Speech by officials, speech by experts, speech by enterprise representatives, release of achievements, etc.
Smart Society Sub-forum
Theme:
Fostering New Growth Drivers for Digital Transformation of Cities
A New Era of Smart Society
Hosted by:
Ministry of Industry and Information Technology
Organized by:
Chinese Institute of Electronics
Fuzhou Municipal People’s Government
China Electronics Technology Group Corporation
Venue:
Room 402, Fuzhou Strait International Conference & Exhibition Center
Time:
14:00-18:00, May 6
Agenda:
Keynote report, release of achievements, special activities, keynote speech, dialogue, etc.
Satellite Application Sub-forum
Theme:
Satellite Applications—New Growth Drivers for the Innovative Development of Digital China
Hosted by:
China National Space Administration (CNSA)
Fujian Provincial People’s Government
Organized by:
Earth Observation System and Data Center of CNSA
Office of the Commission for Integrated Military and Civilian Development of the CPC Fujian Provincial Committee
Office of Fujian Provincial Leading Group for Digital Fujian Development
Fuzhou Municipal People’s Government
Venue:
2F, Multifunctional Hall, Fuzhou Strait International Conference & Exhibition Center
Time:
14:00-18:30, May 6
Agenda:
Speech by officials, keynote speech, dialogue, etc.
Industrial Internet Sub-forum
Theme:
Making Industrial Internet the Best Practice for Digital China
Hosted by:
Ministry of Industry and Information Technology
Organized by:
Fuzhou Municipal People’s Government
China Academy of Information and Communications
China Center for Information Industry Development
Technology Alliance of Industrial Internet
Chinese Alliance for Mass Entrepreneurship and Innovation in Manufacturing
Venue:
2F, Multifunctional Hall, Fuzhou Strait International Conference & Exhibition Center
Time:
09:00-12:00 and 13:30-17:30, May 7
Agenda:
Speech by officials, keynote speech, release of achievements, presentations, dialogue, etc.
Digital Economy Sub-forum
Theme:
High-quality Development Driven by Digital Economy
Guided by:
National Development and Reform Commission
Organized by:
State Information Center
China Information Industry Association
Internet Society of China
Fujian Development and Reform Commission
Fuzhou Municipal People’s Government
Venue:
Room 109, Fuzhou Strait International Conference & Exhibition Center
Time:
09:00-12:00 and 14:00-17:30, May 7
Agenda:
Speech by officials, keynote report, keynote speech, dialogue and discussion, release of achievements, etc.
.
Digital Maritime Silk Road Sub-forum
Theme:
Digital Maritime Silk Road Empowering High-quality Development
Hosted by:
Fujian Provincial People’s Government
National Cultural Heritage Administration
Organized by:
Fujian Provincial Bureau of Cultural Heritage
Fuzhou Municipal People’s Government
Chinese National Committee of International Society for Digital Earth
NetDragon Websoft Holdings Limited
Venue:
Room 401, Fuzhou Strait International Conference & Exhibition Center
Time:
09:00-12:00, May 7
Agenda:
Speech by officials, keynote speech, presentations, activities, dialogue, etc.
Internet of Things Sub-forum
Theme:
Create a Digital World and Envision the Era of the Internet of Things
Hosted by:
Fujian Provincial People's Government
Organized by:
Fuzhou Municipal People's Government
Chinese Institute of Electronics
Fujian Internet of Things Industry Alliance
Fuzhou Internet of Things Open Lab
Venue:
Room 402 of Fuzhou Strait International Conference & Exhibition Center
Time:
09:00-12:00, May 7
Forms:
Speech by officials, keynote speech, strategic signing ceremony, summit dialogue, etc.
Big Data Sub-forum: Digital Culture
Theme:
New Consumption, New Business Models, New Development
Hosted by:
Guangming Daily
Publicity Department of CPC Fujian Provincial Committee
Organized by:
Publicity Department of CPC Fuzhou Municipal Committee
Guangming Daily Cultural Industry Research Center
Venue:
Room 403 of Fuzhou Strait International Conference & Exhibition Center
Time:
09:00-12:00, May 7
Forms:
Speech by officials, keynote speech, summit dialogue, etc.
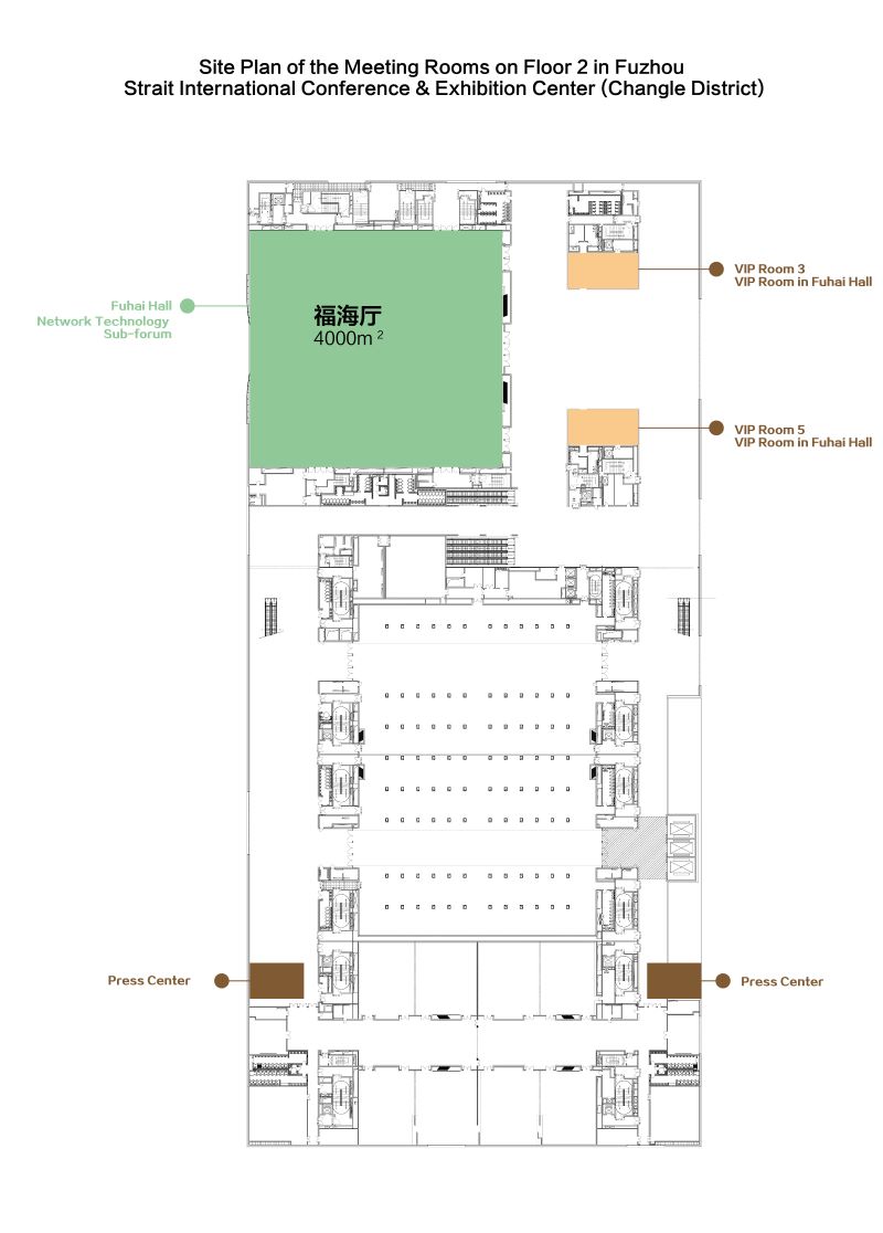
Network Technology Sub-forum
Theme:
Technological Innovation and Blockchain Applications
Hosted by:
Ministry of Science and Technology
Fujian Provincial People’s Government
Organized by:
Fujian Provincial Department of Science and Technology
Fuzhou Municipal People’s Government
China Electronics Technology Cyber Security Co., Ltd.
Venue:
2F, Fuhai Hall, Digital China Convention and Exhibition Center (Changle District)
Time:
09:00-12:00, May 7
Agenda:
Speech by officials, keynote speech, etc.
Digital Health Sub-forum
Theme:
New Era, New Growth Drivers, New Development
Hosted by:
Fujian Provincial People’s Government
Organized by:
Office of Fujian Provincial Leading Group for Digital Fujian Development
The Academy of Digital China (Fujian)
Digital Fujian Expert Committee
Fuzhou Municipal People’s Government
Venue:
Room 402, Fuzhou Strait International Conference & Exhibition Center
Time: 14:30-18:30, May 7
Agenda:
Speech by officials, keynote speech, dialogue, launch ceremony, etc.
Digital Fujian Sub-forum
Theme:
New Era, New Momentum, New Development
Hosted by:
Fujian Provincial People's Government
Organized by:
Office of Fujian Provincial Leading Group for Digital Fujian Development
Digital China Institute (Fujian)
Digital Fujian Expert Committee
Fuzhou Municipal People's Government
Venue:
Room 402 of Fuzhou Strait International Conference & Exhibition Center
Time: 14:30-18:00, May 7
Forms:
Speech by officials, keynote speech, summit dialogue, launch ceremony, etc.
Digital Maritime Silk Road Sub-forum (Smart Oceans)
Theme:
Smart Ocean, Smart Future
Hosted by:
Fujian Provincial People’s Government
Organized by:
Fujian Provincial Department of Oceans and Fisheries
Fuzhou Municipal People’s Government
Jimei University
Linewell Software Group
Venue:
Room 403, Fuzhou Strait International Conference & Exhibition Center
Time: 14:30-17:30, May 7
Agenda:
Speech by officials, launch ceremony, keynote speech, featured report, etc.
Digital China Innovation Competition Finals and Award Ceremony
Open to outstanding domestic and foreign data scientists, the Digital China Innovation Competition 2019 consists of algorithm questions about big data, artificial intelligence and industrial Internet, aimed at exploring technology application and business models with innovative values, inspiring the innovative activities of professionals, and building a new platform for industry-university-research cooperation in the high-tech industry. At the Finals, the works of the 18 teams who stand out from the regional finals will be examined and reviewed openly so as to select topnotch teams of data scientists and solutions that are expected to help promote the deep integration of the new generation of information technology and traditional industries, facilitate the resolution of pain points and difficulties arising in the development of the digital economy and contribute to the building of a digital China.
Theme:
Software Empowering the Digital Economy, Innovation Driving the Development of Digital China
Guided by:
Ministry of Industry and Information Technology
Fujian Provincial People's Government
Hosted by:
Office of Fujian Provincial Leading Group for Digital Fujian Development
Fujian Provincial Department of Industry and Information Technology
Fuzhou Municipal People's Government
China Center for Information Industry Development
Digital China Institute (Fujian)
China Internet Investment Fund
Organized by:
Digital China Innovation Competition Committee
Venue:
Room 104 of Fuzhou Strait International Conference & Exhibition Center
Time:
09:00-12:30 and 14:00-18:15, May 7
Agenda:
Speech by officials, keynote speech, discussion
Digital China Innovation Competition
Talent, Technology and Capital - Innovation Ecology Closed-door Meeting
This meeting will bring together representatives of the Innovation Competition sponsors, representatives from renowned institutional investors, leading experts and scholars, business leaders, executives from the companies setting the questions, as well as representatives of the finalists. They will review and analyze the experience and results of this competition and room for improvement, and look into the next one. Panelists will also talk about the development of the digital economy by probing into topics such as how to realize integration of talents, technology and capital, and how to leverage capital to drive talent development and technology innovation for the transformation and upgrading of the real economy.
Venue:
Room 406, Fuzhou Strait International Conference & Exhibition Center
Time:
15:00-16:00, May 7
Agenda:
Speech by officials, keynote speech, discussion
Closing Ceremony
Time:
9:00-11:00, May 8
Venue:
2F, Multifunctional Hall, Fuzhou Strait International Conference & Exhibition Center
Number of Attendees: 1,200
Agenda:
1.Policy Release
Moderator: A major official of the Information Technology Development Bureau under the Cyberspace Administration of China
09:00-10:00 Policies to be published by Competent Ministries and Commissions
2. Closing Ceremony:
Moderator: A senior official of Fujian Provincial People’s Government
10:00-10:40 Speech by representatives from leading enterprises engaged in the digital economy
10:40-10:45 Launch ceremony of the “Pilot Program” for digital transformation
10:45-11:00 Summary speech by an official of Fujian Provincial People’s Government
Digital China Achievements Exhibition

Hall 8: Comprehensive Exhibition Area + Digital Fujian (I)
Comprehensive Exhibition Area
I.Background
II.Digital China construction in progress
III.Future prospect
Digital Fujian Exhibition Area
I.Innovative development
II.Coordinated development
III.Green development
IV.Open development
V.Shared development
Hall 7: Guest Province of Honor + Digital Government
Guest Province of Honor
Digital construction practices by Jiangsu, Guangdong and Guizhou provinces
Digital Government Exhibition Area
I.Digital construction practices by government departments
II.Digital construction practices by local authorities
III.E-government technical support
Hall 6: Digital Economy (Digital Industrialization)
I.Advanced communication technology
II.Cloud computing
III.Satellite industry
IV.Industry-university-research integration
Hall 5: Digital Economy (Industrial Digitalization) + Achievement Release
Digital Economy (Industrial Digitalization)
I.Industrial Internet
II.Intelligent manufacturing
III.Integration of other industries and the Internet
IV.Internet security
V.Block chain
Achievement Release Area C
Hall 10: Smart Society + Digital Life + Achievement Release
Smart Society Exhibition Area
I.Artificial intelligence
II.Big data
III.Internet of Things
IV.Smart city
V.Digital culture
VI.Digital education
VII.Digital ecology
Digital Life Exhibition Area
Achievement Release Area A
Achievement Release Area B

Dialogue: Outlook for Fuzhou
Time: 19:00-22:10, May 5
Venue: Three Lanes and Seven Alleys
Number of Attendees: 200
Route:
Nanhou Street of Three Lanes and Seven Alleys (Interactive experience of digital technology scenarios)————Three ancient courtyards in the Former Residence of the Huang Family, Former Residence of Guo Baiyin and Former Residence of Liu Qixian (Courtyard dialogues)————Waterside Pavilion (VIP dialogue and group photo)
Arrangement:

Minjiang River Cruise - Digital Economy Dialogue
Time: 19:00-21:30, May 6
Venue: Cruise ship on the Minjiang River
Features: Government officials, experts and scholars as well as outstanding industry leaders in the digital economy are all invited to the cruise along the Minjiang River to discuss about development of the digital economy while enjoying the intangible cultural heritage and the night views of both banks. The topics include cooperation and development as well as opportunities and challenges encountered for the digital economy.
Cruise route: Taijiang Wharf–Minjiang Bridge–Saint Dominic’s Cathedral–Aofeng Bridge–3D Light Show Area in Taijiang Wanda Plaza–Eastern Office Area–Huahai Park–Gushan Bridge–Minjiang Shijicheng Residential Area–Empark Grand Hotel–Fuzhou Strait International Conference & Exhibition Center– Sheraton Fuzhou Hotel–Taijiang Wharf
【Cruise 1】Wushan Hill
Display of local culture and intangible cultural heritage
Min opera
Topic for discussion
Artificial intelligence
【Cruise 2】Yushan Hill
Display of local culture and intangible cultural heritage
Bodiless lacquerware
Topic for discussion
Digital Maritime Silk Road
【Cruise 3】Pingshan Hill
Display of local culture and intangible cultural heritage
Cork carving
Topic for discussion
Digital health
【Cruise 4】Black Pagoda
Display of local culture and intangible cultural heritage
Oil-paper umbrella
Topic for discussion
Internet of Things
【Cruise 5】White Pagoda
Display of local culture and intangible cultural heritage
Jasmine flower
Topic for discussion
Digital community
Experiencing Digital
Route 1: Gulou District
Fuzhou Strait International Conference & Exhibition Center—Intelligent Junmen Community—Juchunyuan Hotel (intelligent restaurant)—Dongbai Commercial Center (credit community, all-scenario facial recognition payment, interactive experience in the business district service platform)—Nanhou Street (exhibition hall in the intelligent scenic area, visual management platform for business consumption, digital technology experience)—Return
Route 2: Cangshan District
Fuzhou Strait International Conference & Exhibition Center—Cangshan District No. 1 Central Kindergarten (Campus Health Care and Children Safety Intelligent Management Cloud Platform)—Cangshan District Feifengshan Intelligent Park (Apolong driverless vehicle, unmanned vending vehicle, intelligent device)—Return
Route 3: Changle District
Fuzhou Strait International Conference & Exhibition Center—Digital China Conference & Exhibition Center (Donghu Digital Town)—Health and Medical Big Data Hall (Big Data Industrial Park)—Rong Qiao Sedbergh School (Intelligent Campus)—NetDragon Websoft Changle Base (NetDragon Intelligent Town)—Return
Schedule:
For Route 1 and 2:
1. 14:30-17:30, May 6
2. 8:30-11:30, May 7
3. 14:30-17:30, May 7
For Route 3
1. 14:00-17:30, May 6
2. 14:00-17:30, May 7
OFFICIAL APP